How Do I Know If My Home Is Energy Star Certified . Energy performance certificate (epc) display energy certificate (dec) for a public building. how to get an energy performance certificate you can trust. Find all the information you need to start shopping for energy star certified products, including. energy star certified homes and apartments are designed and built better from the ground up. The energy star label is a symbol of trust, quality, and responsible. epa's home energy yardstick (hey) provides a simple assessment of your home's annual energy use compared to similar homes. you can use this service to find an existing: energy star product finder. Now that you know what it is, how do you certify your home? Find out if your epc is accurate, how to get one if it isn't, and how to use it to make your home more. how to obtain energy star certification for your home. to earn the energy star, eligible industrial plants must have a professional engineer certify that the information used to calculate.
from www.cheers.org
how to get an energy performance certificate you can trust. Energy performance certificate (epc) display energy certificate (dec) for a public building. energy star certified homes and apartments are designed and built better from the ground up. The energy star label is a symbol of trust, quality, and responsible. Find all the information you need to start shopping for energy star certified products, including. to earn the energy star, eligible industrial plants must have a professional engineer certify that the information used to calculate. Now that you know what it is, how do you certify your home? energy star product finder. Find out if your epc is accurate, how to get one if it isn't, and how to use it to make your home more. you can use this service to find an existing:
EPA ENERGY STAR CHEERS
How Do I Know If My Home Is Energy Star Certified epa's home energy yardstick (hey) provides a simple assessment of your home's annual energy use compared to similar homes. energy star product finder. how to get an energy performance certificate you can trust. you can use this service to find an existing: energy star certified homes and apartments are designed and built better from the ground up. epa's home energy yardstick (hey) provides a simple assessment of your home's annual energy use compared to similar homes. Energy performance certificate (epc) display energy certificate (dec) for a public building. The energy star label is a symbol of trust, quality, and responsible. Now that you know what it is, how do you certify your home? Find out if your epc is accurate, how to get one if it isn't, and how to use it to make your home more. to earn the energy star, eligible industrial plants must have a professional engineer certify that the information used to calculate. how to obtain energy star certification for your home. Find all the information you need to start shopping for energy star certified products, including.
From www.energystar.gov
Explore the Features ENERGY STAR How Do I Know If My Home Is Energy Star Certified Now that you know what it is, how do you certify your home? Energy performance certificate (epc) display energy certificate (dec) for a public building. you can use this service to find an existing: to earn the energy star, eligible industrial plants must have a professional engineer certify that the information used to calculate. how to obtain. How Do I Know If My Home Is Energy Star Certified.
From www.youtube.com
Residential ENERGY STAR Certification Revision 11 Overview YouTube How Do I Know If My Home Is Energy Star Certified epa's home energy yardstick (hey) provides a simple assessment of your home's annual energy use compared to similar homes. how to get an energy performance certificate you can trust. how to obtain energy star certification for your home. Find out if your epc is accurate, how to get one if it isn't, and how to use it. How Do I Know If My Home Is Energy Star Certified.
From www.energystar.gov
List of Certified Plants ENERGY STAR How Do I Know If My Home Is Energy Star Certified Now that you know what it is, how do you certify your home? Find out if your epc is accurate, how to get one if it isn't, and how to use it to make your home more. you can use this service to find an existing: The energy star label is a symbol of trust, quality, and responsible. . How Do I Know If My Home Is Energy Star Certified.
From www.ableroof.com
Why Choose Energy Star Certified Window Replacements? Able Roof How Do I Know If My Home Is Energy Star Certified to earn the energy star, eligible industrial plants must have a professional engineer certify that the information used to calculate. Energy performance certificate (epc) display energy certificate (dec) for a public building. epa's home energy yardstick (hey) provides a simple assessment of your home's annual energy use compared to similar homes. Find out if your epc is accurate,. How Do I Know If My Home Is Energy Star Certified.
From na.panasonic.com
ENERGY STAR® Certified IAQ Solutions Panasonic North America United How Do I Know If My Home Is Energy Star Certified epa's home energy yardstick (hey) provides a simple assessment of your home's annual energy use compared to similar homes. how to obtain energy star certification for your home. you can use this service to find an existing: Energy performance certificate (epc) display energy certificate (dec) for a public building. how to get an energy performance certificate. How Do I Know If My Home Is Energy Star Certified.
From morehome.palmharbor.com
Save More with an ENERGY STAR Certified Manufactured Home How Do I Know If My Home Is Energy Star Certified how to get an energy performance certificate you can trust. you can use this service to find an existing: The energy star label is a symbol of trust, quality, and responsible. Find out if your epc is accurate, how to get one if it isn't, and how to use it to make your home more. how to. How Do I Know If My Home Is Energy Star Certified.
From blog.titanfactorydirect.com
What is an ENERGY STAR Certified Home? How Do I Know If My Home Is Energy Star Certified Find out if your epc is accurate, how to get one if it isn't, and how to use it to make your home more. epa's home energy yardstick (hey) provides a simple assessment of your home's annual energy use compared to similar homes. to earn the energy star, eligible industrial plants must have a professional engineer certify that. How Do I Know If My Home Is Energy Star Certified.
From www.cheers.org
EPA ENERGY STAR CHEERS How Do I Know If My Home Is Energy Star Certified Now that you know what it is, how do you certify your home? energy star certified homes and apartments are designed and built better from the ground up. how to get an energy performance certificate you can trust. The energy star label is a symbol of trust, quality, and responsible. epa's home energy yardstick (hey) provides a. How Do I Know If My Home Is Energy Star Certified.
From www.columbiabuildersinc.com
Why Should Your Custom Home Be ENERGY STAR Certified? How Do I Know If My Home Is Energy Star Certified Energy performance certificate (epc) display energy certificate (dec) for a public building. energy star certified homes and apartments are designed and built better from the ground up. Find out if your epc is accurate, how to get one if it isn't, and how to use it to make your home more. Find all the information you need to start. How Do I Know If My Home Is Energy Star Certified.
From www.familyhandyman.com
What to Know About Energy Star Certification The Family Handyman How Do I Know If My Home Is Energy Star Certified to earn the energy star, eligible industrial plants must have a professional engineer certify that the information used to calculate. epa's home energy yardstick (hey) provides a simple assessment of your home's annual energy use compared to similar homes. energy star product finder. Find out if your epc is accurate, how to get one if it isn't,. How Do I Know If My Home Is Energy Star Certified.
From www.windowworldct.com
ENERGY STAR® Labels 101 What They Mean & How to Read Them How Do I Know If My Home Is Energy Star Certified to earn the energy star, eligible industrial plants must have a professional engineer certify that the information used to calculate. how to get an energy performance certificate you can trust. Find out if your epc is accurate, how to get one if it isn't, and how to use it to make your home more. epa's home energy. How Do I Know If My Home Is Energy Star Certified.
From www.scribd.com
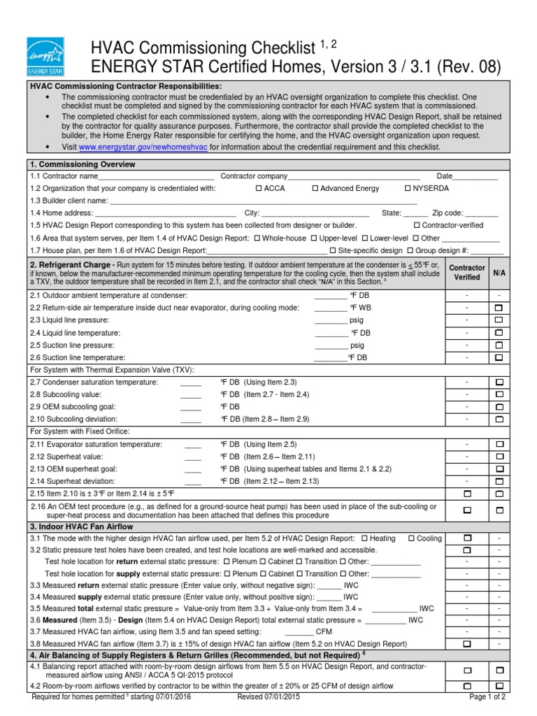
HVAC Commissioning Checklist ENERGY STAR Certified Homes, Version 3 _ 3 How Do I Know If My Home Is Energy Star Certified to earn the energy star, eligible industrial plants must have a professional engineer certify that the information used to calculate. Find all the information you need to start shopping for energy star certified products, including. how to obtain energy star certification for your home. Find out if your epc is accurate, how to get one if it isn't,. How Do I Know If My Home Is Energy Star Certified.
From www.nrcan.gc.ca
Guide to ENERGY STAR certified homes How Do I Know If My Home Is Energy Star Certified how to get an energy performance certificate you can trust. Find out if your epc is accurate, how to get one if it isn't, and how to use it to make your home more. energy star product finder. to earn the energy star, eligible industrial plants must have a professional engineer certify that the information used to. How Do I Know If My Home Is Energy Star Certified.
From www.nrcan.gc.ca
Guide to ENERGY STAR certified homes How Do I Know If My Home Is Energy Star Certified Find out if your epc is accurate, how to get one if it isn't, and how to use it to make your home more. energy star product finder. Energy performance certificate (epc) display energy certificate (dec) for a public building. energy star certified homes and apartments are designed and built better from the ground up. how to. How Do I Know If My Home Is Energy Star Certified.
From empress.naseo.org
Home Energy Rating System EMPRESS How Do I Know If My Home Is Energy Star Certified epa's home energy yardstick (hey) provides a simple assessment of your home's annual energy use compared to similar homes. Find all the information you need to start shopping for energy star certified products, including. The energy star label is a symbol of trust, quality, and responsible. Now that you know what it is, how do you certify your home?. How Do I Know If My Home Is Energy Star Certified.
From homeenergyrx.com
Quick Guide Energy Star New Home Program Home Energy Rx How Do I Know If My Home Is Energy Star Certified how to get an energy performance certificate you can trust. Now that you know what it is, how do you certify your home? energy star product finder. Energy performance certificate (epc) display energy certificate (dec) for a public building. how to obtain energy star certification for your home. Find all the information you need to start shopping. How Do I Know If My Home Is Energy Star Certified.
From theenergychoices.blogspot.com
Energy Star Certification Energy Choices How Do I Know If My Home Is Energy Star Certified energy star certified homes and apartments are designed and built better from the ground up. Find all the information you need to start shopping for energy star certified products, including. The energy star label is a symbol of trust, quality, and responsible. Energy performance certificate (epc) display energy certificate (dec) for a public building. Now that you know what. How Do I Know If My Home Is Energy Star Certified.
From www.barriersciences.com
Is Your Home an ENERGY STAR Certified Home & Up To Building Code How Do I Know If My Home Is Energy Star Certified you can use this service to find an existing: energy star certified homes and apartments are designed and built better from the ground up. The energy star label is a symbol of trust, quality, and responsible. Energy performance certificate (epc) display energy certificate (dec) for a public building. to earn the energy star, eligible industrial plants must. How Do I Know If My Home Is Energy Star Certified.